lake dillon
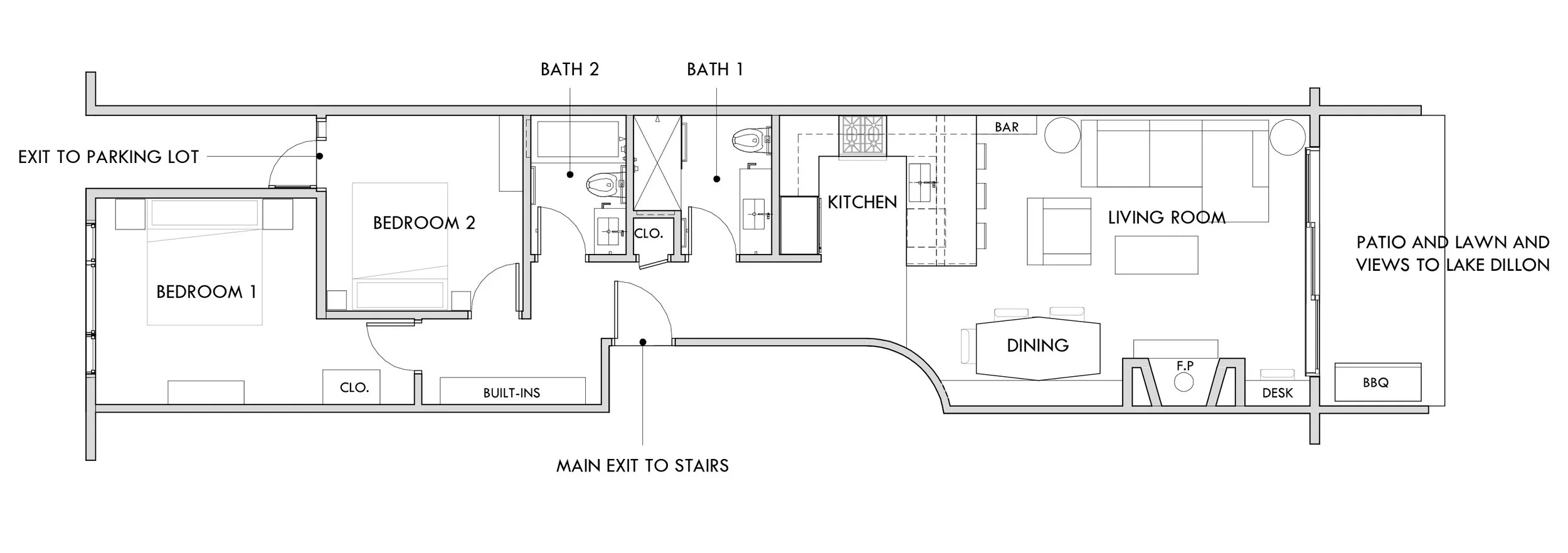
Location: Dillon, CO
Status: Completed 2026
Size: 1,000 sq. ft.
Bed/Bath Count: 2 Bed / 2 Bath
Design Team:
Architecture and Interiors: Sean Bailey Design
Location: Dillon, CO
Status: Completed 2026
Size: 1,000 sq. ft.
Bed/Bath Count: 2 Bed / 2 Bath
Design Team:
Architecture and Interiors: Sean Bailey Design